







Netto gulvareal (NTA):
Skisseforslag
2007
30 m² tilbygg
Privat huseier
Byggherre:
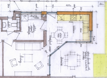
• Tilbygg enebolig på Aylestone
Skissen gjelder et tilbygg i grunnetasjen ved en eksisterende tomannsbolig. Tilbygget er planlagt i massivtre, mens det eksisterende huset er oppført i teglstein. Tilbygget er situert på sydøstsiden; store glassoverflater og horisontal solavskjerming ble foreslått for å utnytte solvarme i boligen. Glass skyvedører gir adkomst til en terrasse som er beskyttet mot vind.
Sted:
Aylestone, Leicester, Storbritannia
År av oppdrag:
Prosjektfase: