










Netto gulvareal (NTA):
Skisseforslag, forprosjekt
2009
Cirka 173 m² nybygg
Sandefjord
Hovedentreprenør:
Sted:
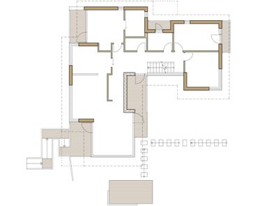
• Landhus på Vesterøya
Nybygg av et frittstående hus over to etasjer med loft, i nærheten av Sandefjord by. Huset er situert på en lav fjellknaus og har fjordutsikt. Adkomst er fra sokkeletasje. Trappen som fører til hovedetasjen følger den naturlige terrengskråningen; på den måten trenges det lite sprengningsarbeid. Plassering av terrasser er tilpasset naturlig terrenghøyde og utsikt.
Konstruktør:
Rådgiver geoteknikk:
-
Byggherre:
Netto byggekostnad:
År av oppdrag:
-
-
-
Privat tomteeier
Prosjektfaser: