








Detaljregulering og illustrasjonsprosjekt
Påbegynt i desember 2018
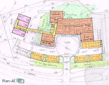
Planlegging av et område på 4,8 dekar
24 boliger + næring og helsetjenester
Nesodden-
Størrelse:
• Nytt boligområde med næring ved Bomansvik
For tiden lager vi en reguleringsplan for nyutvikling av et område på østkanten av Nesodden, ved Bomansvik nær Bunnefjorden.
Bebyggelsen vil omfatte 24 leiligheter og cirka 900 m² nærings-
Næringsfunksjonene og helsetjenestene blir gruppert rundt et lite torg.
Bygningshøydene følger den naturlige terrengskråningen.
Planarbeidet starter opp i våren 2019.
Forslagsstiller:
Sted:
År av oppdrag:
Prosjektfase:
Privat eiendomsselskap
Byplanlegger:
Plan-